Active

Listing Tools

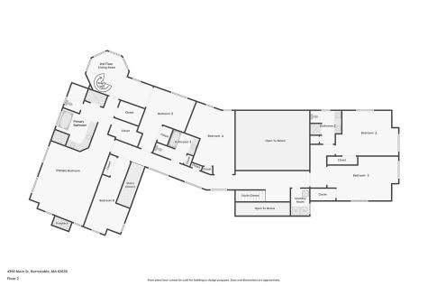
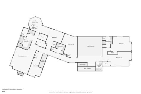
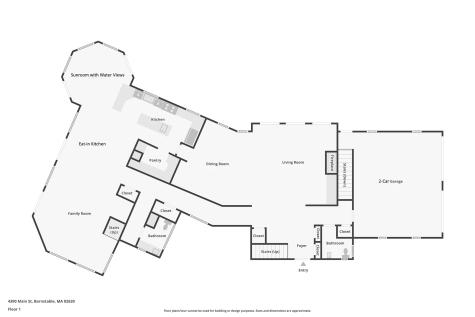
WATERFRONT ESTATE Offered for the first time in 25 years that blends classic coastal architecture with modern refinement. Built in 1994 and newly refreshed with brand-new siding and a Red Cedar roof (August 2025). Step into Cape Cod luxury with 6 bedrooms and 5 baths, a chef's kitchen, outfitted with a Viking professional gas range, Sub-Zero refrigerator, center island with prep sink, that flows seamlessly into the expansive sun-drenched living room, dining area, and waterfront sunroom. 2-car garage and full basement in the main residence for convenience and storage, plus a versatile guest house features its own 2-car garage and a captivating fieldstone fireplace. This space offers endless possibilities for multi-generational families to create a two-bedroom retreat, an artist's studio, game room, or workshop. This private estate with over 3.81 acres includes a private in-ground pool, lush landscaping, and direct access to the tidal water. This rare offering presents the chance to own not just a home, but a true Cape Cod sanctuary. A private waterfront estate designed for those who seek beauty, privacy, and an unparalleled coastal lifestyle. Some photos virtually staged

Property Details of 4390 Main Street

Property Details

Interior Features

Exterior Features

Community

Other Details

Map Location

Listed by Robert MacKinnon of eXp Realty,LLC

broker reciprocity The data relating to real estate for sale on this site comes from the Broker Reciprocity (BR) of the Cape Cod & Islands Multiple Listing Service, Inc. Summary or thumbnail real estate listings held by brokerage firms other than Chatelain Real Estate are marked with the BR Logo and detailed information about them includes the name of the listing broker. Neither the listing broker nor Chatelain Real Estate shall be responsible for any typographical errors, misinformation, or misprints and shall be held totally harmless.

This site was last updated March 10, 2026 8:51 PM EDT. All properties are subject to prior sale, changes, or withdrawal.

Chatelain Real Estate has chosen to display only certain towns and/or types or styles of properties. This site may not show all listings that are available through the Cape Cod & Islands Multiple Listing Service, Inc.

Hi there! How can we help you?

Contact us using the form below or give us a call.

Send Us A Message:

I agree to receive marketing and customer service calls and text messages from Chatelain Real Estate. To opt out, you can reply 'stop' at any time or click the unsubscribe link in the emails. Consent is not a condition of purchase. Msg/data rates may apply. Msg frequency varies. Privacy Policy.

Do not fill in this field:

This site is protected by reCAPTCHA and the Google Privacy Policy and Terms of Service apply.

Hi there! How can we help you?

Contact us using the form below or give us a call.

Send Us A Message:

Do not fill in this field:

This site is protected by reCAPTCHA and the Google Privacy Policy and Terms of Service apply.

Hi there! How can we help you?

Contact us using the form below or give us a call.

Send Us A Message:

Do not fill in this field:

This site is protected by reCAPTCHA and the Google Privacy Policy and Terms of Service apply.

Do not fill in this field:

This site is protected by reCAPTCHA and the Google Privacy Policy and Terms of Service apply.

Do not fill in this field:

This site is protected by reCAPTCHA and the Google Privacy Policy and Terms of Service apply.

Do not fill in this field:

This site is protected by reCAPTCHA and the Google Privacy Policy and Terms of Service apply.

$

Do not fill in this field:

This site is protected by reCAPTCHA and the Google Privacy Policy and Terms of Service apply.