Active

Listing Tools

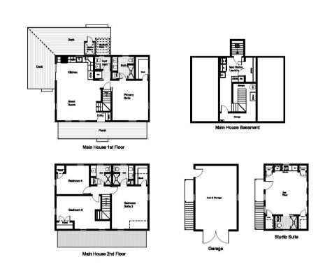
TRANQUILITY- located in desirable 'Sconset village, this newly constructed Cape-style cottage blends timeless charm with modern luxury. Thoughtfully expanded and fully renovated, the four bedroom home is ideal for coastal living and checks all the boxes. A welcoming front porch and wrap around deck with a custom outdoor shower set the tone for relaxed elegance, while the oversized garage with a studio suite above offers flexible living space for entertaining or a potential fifth bedroom for guests. The first floor features a sunlit kitchen, dining area, great room, a spacious primary suite, a convenient laundry and half bath. Upstairs you'll find two additional bedrooms, a full bath, and a second primary suite for family and friends. The finished basement adds functional appeal with a mudroom area and ample storage. Enjoy outdoor living with a large private yard and heated pool, surrounded by coastal landscaping and custom hardscape. Completed in 2025 and ready for years to come.

Property Details of 8 Sconset Avenue

Property Details

Interior Features

Exterior Features

Community

Other Details

Map Location

Listed by Paul N Drepanos of Compass Massachusetts,LLC

broker reciprocity The data relating to real estate for sale on this site comes from the Broker Reciprocity (BR) of the Cape Cod & Islands Multiple Listing Service, Inc. Summary or thumbnail real estate listings held by brokerage firms other than Chatelain Real Estate are marked with the BR Logo and detailed information about them includes the name of the listing broker. Neither the listing broker nor Chatelain Real Estate shall be responsible for any typographical errors, misinformation, or misprints and shall be held totally harmless.

This site was last updated November 16, 2025 3:51 AM EST. All properties are subject to prior sale, changes, or withdrawal.

Chatelain Real Estate has chosen to display only certain towns and/or types or styles of properties. This site may not show all listings that are available through the Cape Cod & Islands Multiple Listing Service, Inc.

Hi there! How can we help you?

Contact us using the form below or give us a call.

Send Us A Message:

I agree to receive marketing and customer service calls and text messages from Chatelain Real Estate. To opt out, you can reply 'stop' at any time or click the unsubscribe link in the emails. Consent is not a condition of purchase. Msg/data rates may apply. Msg frequency varies. Privacy Policy.

Do not fill in this field:

This site is protected by reCAPTCHA and the Google Privacy Policy and Terms of Service apply.

Hi there! How can we help you?

Contact us using the form below or give us a call.

Send Us A Message:

Do not fill in this field:

This site is protected by reCAPTCHA and the Google Privacy Policy and Terms of Service apply.

Hi there! How can we help you?

Contact us using the form below or give us a call.

Send Us A Message:

Do not fill in this field:

This site is protected by reCAPTCHA and the Google Privacy Policy and Terms of Service apply.

Do not fill in this field:

This site is protected by reCAPTCHA and the Google Privacy Policy and Terms of Service apply.

Do not fill in this field:

This site is protected by reCAPTCHA and the Google Privacy Policy and Terms of Service apply.

Do not fill in this field:

This site is protected by reCAPTCHA and the Google Privacy Policy and Terms of Service apply.

$

Do not fill in this field:

This site is protected by reCAPTCHA and the Google Privacy Policy and Terms of Service apply.